 |
|
 |

Media Releases

 |
 |
 |
 |
 |

Q&A - The Sun Property Plus 30th June 2006
| Q. |
|
I WORK at home, in my room specifically. My desk is against the wall so that when I work, I am facing the wall (West) while the bed is right behind me. Is this advisable from a feng shui perspective? My birthday is May 7, 1979, and I am female.
|
 |
| A. |
|
Facing the wall is not a problem. What is more of a problem is that based on your birth date, you have the Ming Gua of Zhen or Number 3. Hence, the direction of West is not suitable for you. You should attempt to face any of your good directions of S, N, SE or E. This can be applied to your bed as well; when you sleep, have your head pointing towards any of your good directions.
|
|
| Q. |
|
My grandfather’s house has a huge painting of a waterfall that directly faces the main door. Friends and relatives have been saying for years that this is bad feng shui because it symbolises money flowing out. Is this true? Both the painting and the front door face North.
|
 |
| A. |
|
Not necessarily. Firstly, a painting is not the same as the real thing. If you do have a water feature and the water is flowing away, then that is not good. A painting is symbolic and feng shui is not so much about symbolism. Again, this depends on the distance between the painting and the front door as well. The greater the distance, the lesser an already small impact.
|
|
| Q. |
|
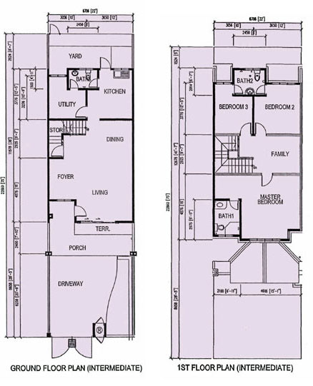
We intend to do some renovations to our new house. The sliding door faces Northeast and the side door faces Southeast. My husband’s Gua number is 6, mine is 9, our son’s is 7 and our daughter’s is 8. Before renovating, we would like to seek your recommendations to design the perfect feng shui house, which should also fit well, aesthetics and function-wise. Please advise us on the entrance door, kitchen, stove and bedrooms. A copy of the floor plan is enclosed for your reference (see floor plans).
|
 |
| A. |
|
What is the exact degree of Northeast that your house faces? This is very important as one degree’s difference can mean the difference between having a good direction and a bad direction. How the house is to be laid out will also affect feng shui, even by a couple of degrees. These measurements can only be determined by a feng shui consultant on site. Which is why I reiterate that an accurate feng shui consultation can only be done when the feng shui consultant actually goes out on site. It cannot be accurate from a plan alone. Assuming that the house is directly facing Northeast, your husband and children can use the sliding door to enter and exit the house, but you should use the Southeast door. Have your kitchen in the utility room, have your bed facing Northwest in the master bedroom and your children should use bedroom 2. I would advise that you seek proper feng shui advice through an on-site consultation as what I have mentioned above can be easily be inverted with a slight
variance of the sliding door.
|
Master Yap Boh Chu is the son of Grand Master Yap Cheng Hai. He co-founded the Yap Cheng Hai Academy to propagate the proper teaching and practice of classical feng shui and qi gong.
Yap Cheng Hai Academy Sdn Bhd
Tel: (03) 2070 8009; Fax: (03) 2072 8009; E-mail: info@ychacademy.com
Disclaimer: Yap Cheng Hai Academy Sdn Bhd does not, and cannot, in any way whatsoever or howsoever represent, warrant or guarantee that the recommendations given in this column mean that the happiness and good fortune of the person(s) who put these
recommendations into practice will naturally or necessarily follow
|
 |
|
 |
 |
|
 |
|
 |